Seagrass Beach – Windstorm IBHS Fortified Homes

Bolivar Peninsula, Galveston, TX
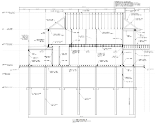
  • The Fortified Disaster Resistant Luxury Buildings in Galveston are designed for IBHS Gold Standard Certification.
  • These TDI compliant buildings are Sea facing in the VE-Zone. Wooden piles, Anthony Power Beams and Simpson Strong backs are used with extensive Shear Resistance to withstand Hurricane winds of 160 mph.
  • The First Level has break-away walls for protecting the building from wave loads per FEMA standards. The doors/windows are designed for DP65.