Home
About Us
Services
Projects
Commercial Building Design
Residential Building Design
Industrial Building Design
Iget
(Subsidiary Company)
Contact
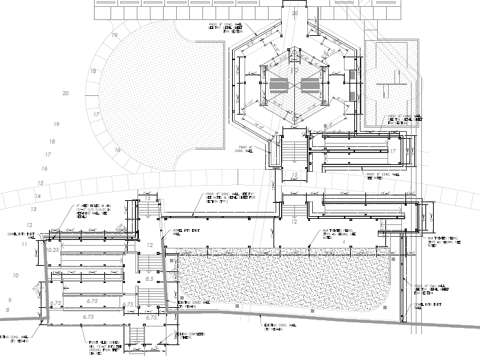
Oceanway Modular Homes
Beach City, TX
iGET Performed Engineering for the Beach Home Community
Site Amenities Design
Site Civil Design
Foundation Design for Modular Homes for Windstorm Criteria