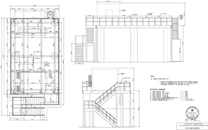
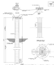
Elevated Platforms
CenterPoint Energy
Design Consultant - Engineer of Record (2019 - 2020)
- Designed several Elevated Steel Platforms for CenterPoint Energy, for accommodating AOC Buildings and Equipment in the substations, well above high-flood waters.
- These optimal structural designs typically have pier foundations, footings, and structural steel members.
- Structural Designs were created using STAAD Pro, and construction drawings were generated from AutoCAD.