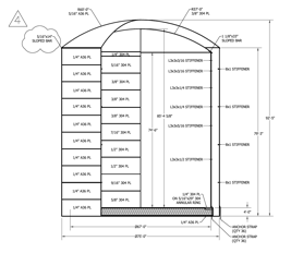
Cryogenic Tank Structural Design

Praxair – Texas City, TX

Image 1
Image 2
Image 3
Image 4
Design Consultant (2015)

Designed the Steel Storage Tank structure and RCC Ring Beam, bearing on Foamglas insulation, for 2-million-gallon Containment tank to store LN2 at Cryogenic (-320°F) temperatures.